Hagenborgh 13 7607 JT Almelo

Omschrijving

Fenomenaal uitzicht op het Rogmanspark, energielabel A, gelijkvloers wonen en parkeren voor deur!

Welkom aan de Hagenborgh 13, een woning voor jong en oud. Dit ruime appartement beschikt over een prachtig uitzicht over het Rogmanspark in het centrum van Almelo. Gelegen op de eerste woonverdieping inclusief balkon én mogelijkheid tot parkeren recht voor de deur op het parkeerdek.

Het complex ligt op een mooie centrale locatie in het hartje van Almelo en heeft alle voorzieningen, zoals bus- en treinstation, markt, bibliotheek, winkels en horeca etc. dichtbij. Ook de natuur en rust is aanwezig in de directe omgeving in het Hagenpark, op de Gravenallee, het Rogmanspark met het recent geopende “Natuurhus”.

Begane grond:
Gesloten, centrale entree met video-intercominstallatie, lift en trappenhuis.

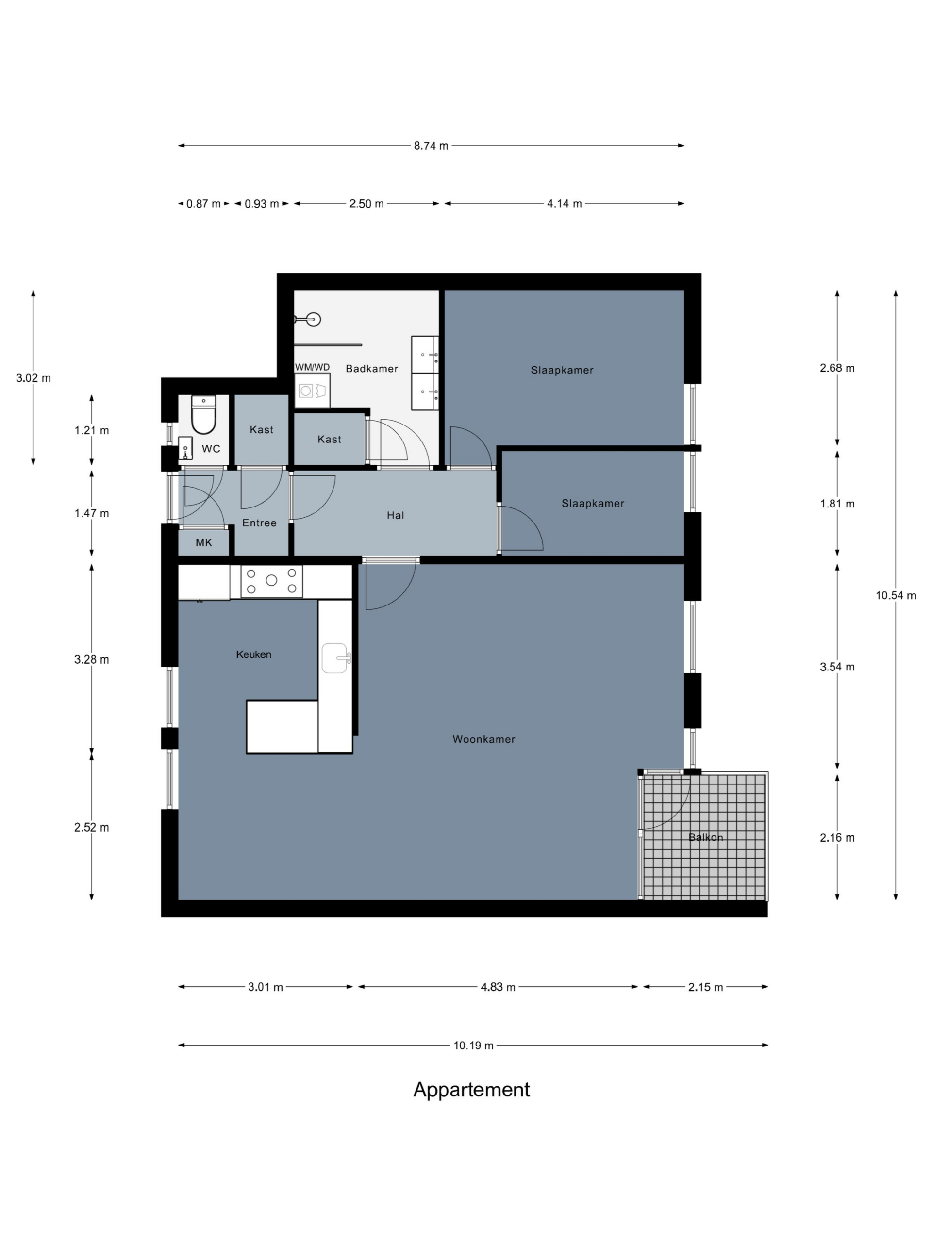
Indeling appartement:
Hal, entree, meterkast, toiletruimte, wasruimte, badkamer voorzien van inloopdouche en wastafelmeubel, vaste kast met cv-opstelling, twee slaapkamers, de woonkamer is zeer ruim en geeft toegang tot het balkon. Het uitzicht is heel erg fraai op het park en de achter gelegen Gravenallee. De open keuken is tevens ruim en o.a. voorzien van grote koel-/vriescombinatie, vijfpits (gas-)fornuis met oven en een moderne afzuigkap.

Bijzonderheden:
- Bouwjaar: 1985;
- Woonoppervlakte 87 m²;
- Energielabel A;
- Balkon op oost met prachtig uitzicht;
- Parkeren op het parkeerdek voor de deur voor € 35,- per maand;
- Verwarming middels HR combiketel (2022);
- Servicekosten € 196,34 per maand;
- Gehele appartement voorzien van kunststofkozijnen met isolerende beglazing;
- Ideaal appartement voor zowel jong als oud.

Aanvaarding: in overleg.

Deze presentatie is informatief en geheel vrijblijvend. Aan eventuele onjuistheden kunnen geen rechten worden ontleend.

Interesse in dit huis? Schakel direct uw eigen NVM-aankoopmakelaar in. Uw NVM-aankoopmakelaar komt op voor uw belang en bespaart u tijd, geld en zorgen. Adressen van collega NVM-aankoopmakelaars in Twente vindt u op www.funda.nl.

Kenmerken

Algemeen

  • StatusBeschikbaar
  • Koopprijs€ 315.000,- k.k.
  • AanvaardingIn overleg

Bouwvorm

  • Soort objectAppartement
  • Soort appartementPortiekflat
  • Bouwjaar1985
  • BouwvormBestaande bouw
  • LiggingenAan park, In centrum, Vrij uitzicht

Indeling

  • Woonoppervlakte87 m2
  • Inhoud260 m3
  • Aantal kamers3
  • Aantal slaapkamers2
  • Aantal badkamers1
  • Aantal woonlagen4

Energie

  • EnergieklasseA
  • VerwarmingCV ketel
  • C.V.-KetelIntergas HR
  • Bouwjaar C.V.-Ketel2022
  • WarmwaterCV ketel
  • IsolatieDakisolatie, Muurisolatie, Vloerisolatie, Dubbelglas
  • CombiketelJa
  • BrandstofGas
  • EigendomEigendom

Buitenruimte

  • TuinGeen tuin
  • AchteromNee

Bergruimte

  • Totaal aantal1

Parkeergelegenheid

  • Parkeer faciliteitenParkeergarage, Parkeervergunningen
  • GarageGeen garage

Overig

  • Permanente bewoningJa
  • Onderhoud binnenGoed
  • Onderhoud buitenGoed
  • Huidig gebruikWoonruimte
  • Huidige bestemmingWoonruimte

Plattegronden

Plattegrond afbeelding voor Hagenborgh 1341
Plattegrond afbeelding voor Hagenborgh 1341

360º afbeeldingen