De Notenkraker 3 7609 JL Almelo

Omschrijving

Wonen op een prachtige locatie in de “Windmolenbroek” met vrij uitzicht aan de voorzijde in deze goed onderhouden geschakelde vrijstaande woning met garage en ruime oprit.
De woning is gelegen aan een autoluwe straat waar kinderen veilig en heerlijk buiten kunnen spelen, met scholen op loopafstand, het gemak van het nabijgelegen winkelcentrum en de mogelijkheid om te wandelen in het adembenemende buitengebied maakt deze locatie werkelijk fantastisch.

Indeling:
Begane grond:
Entree, hal, toiletruimte, trapopgang, meterkast, ruime L-vormige woonkamer met vrij uitzicht, moderne open keuken met inbouwapparatuur en deur naar achtertuin, aansluitend de ruime garage.

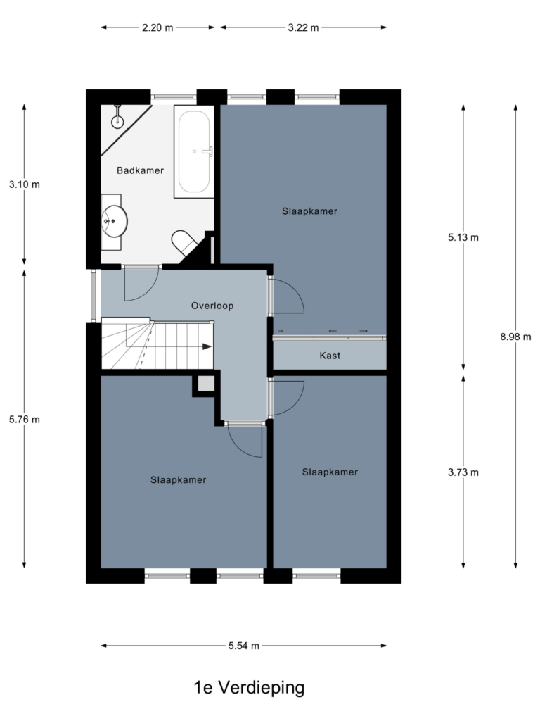
Eerste verdieping:
Overloop, drie royale slaapkamers waarvan de grootste slaapkamer voorzien is van een kastenwand, nette badkamer met wastafelmeubel, douche, toilet en ligbad.

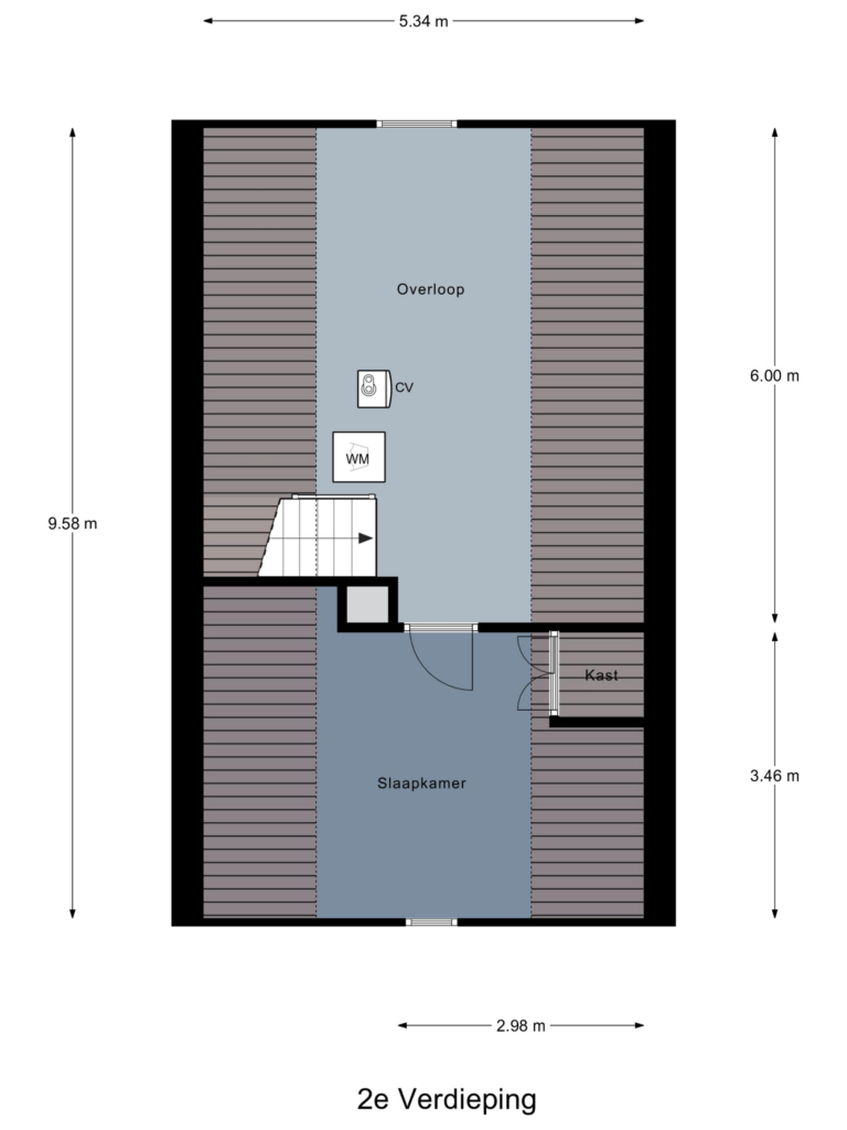
Tweede verdieping:
Overloop naar grote voorzolder met opstelplaats cv-ketel en witgoedapparatuur, ruime slaapkamer met vaste kast en voldoende bergruimte achter de schuine kanten.

Bijzonderheden:
- Bouwjaar 1989;
- Inhoud 521 m³;
- Woonoppervlakte 124 m²;
- Perceelgrootte 245 m²;
- Energielabel B;
- 8 zonnepanelen (2022);
- Warm water middels Remeha HR combi ketel;
- Buitenschilderwerk uitgevoerd in 2023;
- Vrij uitzicht aan voorzijde;
- Ruim opgezette en kindvriendelijke woonomgeving;
- Parkeren op eigen oprit;
- Goed bereikbare uitvalswegen A35/N35/N36.

Aanvaarding: in overleg.

Deze presentatie is informatief en geheel vrijblijvend. Aan eventuele onjuistheden kunnen geen rechten worden ontleend.

Interesse in dit huis? Schakel direct uw eigen NVM-aankoopmakelaar in. Uw NVM-aankoopmakelaar komt op voor uw belang en bespaart u tijd, geld en zorgen. Adressen van collega NVM-aankoopmakelaars in Twente vindt u op www.funda.nl.

Kenmerken

Algemeen

  • StatusVerkocht o.v.
  • Koopprijs€ 389.500,- k.k.
  • AanvaardingIn overleg

Bouwvorm

  • Soort objectWoonhuis
  • Soort woningEengezinswoning
  • Type woningVrijstaande woning
  • Bouwjaar1989
  • BouwvormBestaande bouw
  • LiggingenAan rustige weg, In woonwijk, Vrij uitzicht

Indeling

  • Woonoppervlakte124 m2
  • Perceeloppervlakte245 m2
  • Inhoud521 m3
  • Aantal kamers5
  • Aantal slaapkamers4
  • Aantal badkamers1

Energie

  • EnergieklasseB
  • VerwarmingCV ketel
  • C.V.-KetelRemeha Quinta
  • Bouwjaar C.V.-Ketel2005
  • WarmwaterCV ketel
  • IsolatieVolledig geïsoleerd
  • CombiketelJa
  • BrandstofGas
  • EigendomEigendom

Buitenruimte

  • TuinAchtertuin
  • HoofdtuinAchtertuin
  • Oppervlakte90 m2
  • Ligging hoofdtuinZuid
  • AchteromNee
  • Kwaliteit tuinNormaal

Parkeergelegenheid

  • Parkeer faciliteitenOpenbaar parkeren, Op eigen terrein
  • GarageAangebouwd steen
  • Capaciteit1
  • Garages1

Dak

  • Soort dakZadeldak
  • Materiaal dakPannen

Overig

  • Permanente bewoningJa
  • Onderhoud binnenGoed
  • Onderhoud buitenGoed
  • Huidig gebruikWoonruimte
  • Huidige bestemmingWoonruimte

Plattegronden

Plattegrond afbeelding voor De Notenkraker 344
Plattegrond afbeelding voor De Notenkraker 344
Plattegrond afbeelding voor De Notenkraker 344

Video

360º afbeeldingen